お問い合わせ
新宿エリアの賃貸物件のことなら
お気軽にお問い合わせください。

| 賃料 | 15.5万円(管理費:1.2万円) |
|---|---|
| 敷金 | 1ヶ月 |
| 礼金 | 1ヶ月 |
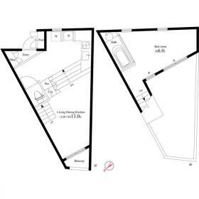
| 間取り | 専有面積 |
|---|---|
| 1K | 25.33m² |


























| 物件名 | プラウドフラット中野( プラウドフラットナカノ) |
|---|---|
| 賃料 | 15.5万円(管理費:1.2万円) |
| 間取り | 1K |
| 専有面積 | 25.33m² |
| 設備 | オートロック , 光ファイバー対応 , 宅配ボックス , システムキッチン , 追焚き機能付 , オートバス , 浴室換気乾燥機 , ウォシュレット , ディンプルキー , 独立洗面台 , 脱衣室 , バストイレ別 |
| 特徴 | ペット相談可 , 分譲賃貸 , 保証人不要 , インターネット無料 |
LINEからも
お問い合わせ
いただけます。

新宿エリアの賃貸物件のことなら
お気軽にお問い合わせください。

■インターネット無料■ペット飼育可■宅配ボックス■
「プラウドフラット中野」は、中野区中野5丁目に建つ、鉄筋コンクリート造・地上5階建ての賃貸レジデンスです。2020年7月竣工の築浅マンションで、JR中央線・東京メトロ東西線「中野駅」から徒歩6分という、都心へのアクセスに優れた立地が魅力です。
間取りは1K・1LDK・2LDKを中心に構成されており、シングルからDINKS層まで、さまざまなライフスタイルに対応。住戸にはシステムキッチンやバス・トイレ別、浴室乾燥機、温水洗浄便座、独立洗面台など、日々の暮らしを快適にする設備が充実しています。さらに、全住戸でインターネット使用料が無料。テレワークやオンライン学習、動画視聴といった日常のデジタルライフもストレスなく利用できます。ペット飼育も可能なため、愛犬や愛猫と共に暮らしたい方にもおすすめです。
最寄りの「中野駅」からはJR中央・総武線と東京メトロ東西線が利用可能で、新宿までは直通で約5分と、通勤・通学にも非常に便利です。駅周辺には「中野ブロードウェイ」や「サンモール商店街」といった商業施設が立ち並び、スーパーや飲食店も豊富。日常の買い物や外食にも困ることはありません。また、近隣には「中野セントラルパーク」や「四季の森公園」といった自然豊かなスポットも点在しており、利便性と落ち着いた住環境の両方を兼ね備えた魅力的なロケーションです。
<周辺環境>
スーパー:ライフ中野駅前店まで300m(徒歩4分)
コンビニ:セブン-イレブン 中野5丁目店まで210m(徒歩3分)
ドラッグストア:OSドラッグ 中野店まで300m(徒歩4分)
郵便局:中野五郵便局まで350m(徒歩5分)
銀行:巣鴨信用金庫 中野支店まで350m(徒歩5分)