お問い合わせ
新宿エリアの賃貸物件のことなら
お気軽にお問い合わせください。

| 賃料 | 11.3万円(管理費:1.2万円) |
|---|---|
| 敷金 | 1ヶ月 |
| 礼金 | 0ヶ月 |
| 間取り | 専有面積 |
|---|---|
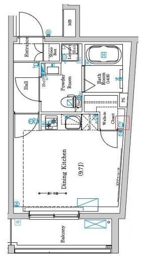
| 1K | 21.66m² |











| 物件名 | レガロ中野坂上(レガロナカノサカウエ) |
|---|---|
| 賃料 | 11.3万円(管理費:1.2万円) |
| 間取り | 1K |
| 専有面積 | 21.66m² |
| 設備 | オートロック , 光ファイバー対応 , 宅配ボックス , システムキッチン , 浴室換気乾燥機 , ウォシュレット , 独立洗面台 , 脱衣室 , バストイレ別 |
| 特徴 | 保証人不要 , 最寄り駅徒歩5分圏内 |
最新の募集状況に関しましては直接お問い合わせ下さいませ。
LINEからも
お問い合わせ
いただけます。

新宿エリアの賃貸物件のことなら
お気軽にお問い合わせください。

■駅近■敷地内ゴミ置場■宅配ボックス
レガロ中野坂上は中野区東中野2丁目に位置する 2005年5月に竣工の地上9階建てのRC造マンションです。ライトブラウンのタイル貼りの外観が特徴です。最寄りは東京メトロ丸ノ内線「中野坂上駅」で徒歩5分の距離です。?JR中央線「東中野駅」からも徒歩9分の立地にあります。
総戸数は57戸あり、間取りは1K~1LDKのプランニングを展開しております。共用エントランスにはTVモニター付きオートロックシステムと防犯カメラが設置されており、セキュリティ面も安心です。宅配ボックスが設置されており、不在時の荷物受け取りにも便利です。?室内設備として、バストイレ別・追い焚き機能付きオートバス(※一部間取りのみ)・浴室乾燥機などが備わっております。
「中野坂上駅」周辺は徒歩圏内に青梅街道や山手通りが通っており、車での移動もしやすいエリアです。高層オフィスビルが立ち並ぶ一方で、少し歩けば落ち着いた住宅街が広がっている街並みで、「新宿駅」まで約4分、「東京駅」まで約18分、「六本木駅」まで約10分と都心へのアクセスも抜群なエリアです。
<周辺環境>
スーパー:まいばすけっと 中野中央2丁目店まで90m(徒歩1分)
コンビニ:セブン-イレブン 東中野2丁目店まで110m(徒歩2分)
ドラッグストア:ミネドラッグ ユニゾンモール東中野店まで1100m(徒歩16分)
郵便局:中野中央一郵便局まで230m(徒歩4分)
銀行:銀行ATM | イーネット ファミリーマート中野中央二丁目 共同出張所店まで120m(徒歩2分)