お問い合わせ
新宿エリアの賃貸物件のことなら
お気軽にお問い合わせください。

| 賃料 | 17.4万円(管理費:1.1万円) |
|---|---|
| 敷金 | 1ヶ月 |
| 礼金 | 1ヶ月 |
| 間取り | 専有面積 |
|---|---|
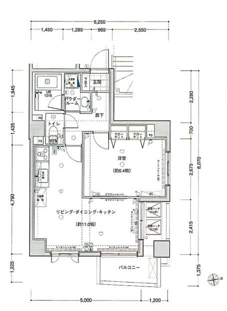
| 1LDK | 41.47m² |










| 物件名 | シンシティ中野(シンシティナカノ) |
|---|---|
| 賃料 | 17.4万円(管理費:1.1万円) |
| 間取り | 1LDK |
| 専有面積 | 41.47m² |
| 設備 | オートロック , 光ファイバー対応 , 宅配ボックス , システムキッチン , 浴室換気乾燥機 , ウォシュレット , 独立洗面台 , 脱衣室 , 角部屋 , バストイレ別 |
| 特徴 | 仲介手数料無料 , 二人入居可 , 分譲賃貸 , 保証人不要 , 1DK以上 , 新婚カップル向け |
最新の募集状況に関しましては直接お問い合わせ下さいませ。
LINEからも
お問い合わせ
いただけます。

新宿エリアの賃貸物件のことなら
お気軽にお問い合わせください。

■ペット可■オートロック■充実した設備
SIN・City中野(シンシティ中野)は、東京都中野区中央4丁目に位置する9階建ての鉄筋コンクリート(RC)マンションです。2010年9月築で近くの駅は東京メトロ東西線「中野駅」歩いて7分の距離です。
ROOM PLANは、1K~1LDKを展開しており、単身者からお二人の暮らし向けの物件となっております。各住戸には独立洗面台・システムキッチン・浴室乾燥機・温水洗浄便座・駐車場(台数制限有)・駐輪場を完備しております。また、建物内にゴミステーション・宅配ボックスも備わっていますので、時間に追われる事のないストレスフリーな生活を過ごせます。
更に、エントランスにはTVモニター付きインターホンと連動したオートロック・共用部分には防犯カメラを設置し、犯罪抑止力の高い防犯対策がとられています。
様々な生活のライフラインや安全性・利便性を向上させる実用性の高い設備が整っております。
またペット飼育可能のため、大切なペットとの暮らしも楽しめます。(飼育細則あり)
マンションから徒歩1分のところには中野区立いちょう公園があり、春には綺麗な桜が咲き誇ります。徒歩5分には広々とした中野区立紅葉山公園があります。ペットの散歩にとても重宝致します。
徒歩4分圏内にはスーパー、コンビニエンスストア、金融機関、病院、薬局、飲食店などの商業施設が多数あり、周辺環境もとても充実しております。
徒歩7分の最寄り駅である「中野駅」は、JR中央本線・中央線(快速)・中央・総武線、東京メトロ東西線などの複数路線が乗り入れをしております。東京メトロ丸ノ内線「新中野駅」にも徒歩8分と近く、行先によって駅の使い分けができ、とても便利でございます。更に、バス停も近く、「新宿駅」行き・「渋谷駅」行き・「永福町駅」行き・「中野駅」行き・「野方駅」行きと様々な行先のバスが通っており、交通手段が充実しており、快適な生活が過ごせる物件でございます。
‘中野’は東京23区の西側にあり、武蔵野台地の一角に位置しています。交通アクセスが良く、かつ武蔵野台地という強固な地盤を持っていたことから、東京随一のベッドタウンとして反映してきた歴史があります。現在でも、区全域に渡って住宅が広がっており、都心の賑やかさと同時に、落ち着いた住宅街としての顔も持っています。
また、新宿区と隣接していて、新宿駅まで直通4分とスムーズにアクセスできます。都心への交通アクセスがとても良く、賃相場も比較的リーズナブルの為、特に若者や単身者が多く住んでいます。東京工芸大学や明治大学の中野キャンパスが設置されている他、中央線沿線地区を中心に専門学校が多く存在していて、若者達の活気に溢れている町でもあります。
また幼稚園・保育園、中学校があるので、お子様の教育環境も充実しています。
<周辺環境>
スーパー:まいばすけっと 中野2丁目店まで220m(徒歩3分)
コンビニ:セブン-イレブン 中野2丁目大久保通り店まで110m(徒歩2分)
ドラッグストア:スギ薬局 中野南口店まで350m(徒歩5分)
郵便局:中野郵便局まで260m(徒歩4分)
銀行:三井住友銀行 中野南口出張所店まで550m(徒歩8分)