お問い合わせ
新宿エリアの賃貸物件のことなら
お気軽にお問い合わせください。

| 賃料 | 14.4万円(管理費:1.5万円) |
|---|---|
| 敷金 | 0ヶ月 |
| 礼金 | 0ヶ月 |
| 間取り | 専有面積 |
|---|---|
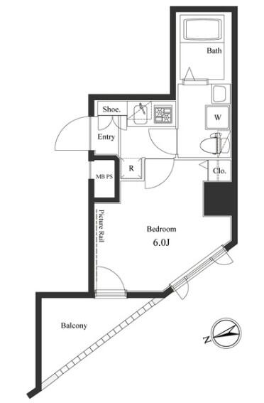
| 1K | 19.75m² |

















| 物件名 | ヴェルト新宿イースト(ヴェルトシンジュクイースト) |
|---|---|
| 賃料 | 14.4万円(管理費:1.5万円) |
| 間取り | 1K |
| 専有面積 | 19.75m² |
| 設備 | オートロック , 光ファイバー対応 , 宅配ボックス , システムキッチン , 浴室換気乾燥機 , ウォシュレット , ディンプルキー , 独立洗面台 , 脱衣室 , 角部屋 , バストイレ別 |
| 特徴 | 敷金・礼金0 , デザイナーズ , 二人入居可 , 分譲賃貸 , 保証人不要 , インターネット無料 , 最寄り駅徒歩5分圏内 |
LINEからも
お問い合わせ
いただけます。

新宿エリアの賃貸物件のことなら
お気軽にお問い合わせください。

■インターネット使用料無料■デザイナーズ
ヴェルト新宿イーストは、東京都心での快適な暮らしを実現する分譲マンションです。最寄り駅は都営大江戸線「東新宿駅」で、徒歩わずか2分の距離に位置し、日々の通勤やお出かけにも非常に便利な立地です。さらに、東京メトロ副都心線も利用可能なため、新宿や池袋、渋谷などの主要エリアへのアクセスもスムーズです。
ルームプランは1Kを中心に展開しており、シングル向けの住戸が揃っています。各住戸には、使い勝手の良いシステムキッチン、独立洗面台、浴室乾燥機、温水洗浄便座などの設備を完備しており、快適な生活をサポートします。さらに、オートロック完備のマンションのため、初めての一人暮らしの方や女性の方にも安心してお住まいいただけます。
また、マンション敷地内には住民専用のゴミ置場が設置されており、ゴミ出しの時間を気にすることなく、忙しい日常の中でも快適に生活できます。
東新宿エリアは、都内の主要スポットへのアクセスが良好で、都心で働く方にとって理想的な住環境です。都営大江戸線と東京メトロ副都心線の2路線を利用できるため、新宿、渋谷、池袋、横浜、埼玉方面への移動もスムーズに行えます。
周辺には飲食店、カフェ、デパート、スーパー、ドラッグストアが充実しており、日々の買い物や外食にも困りません。深夜まで営業している店舗も多く、仕事帰りでも気軽に立ち寄ることができます。さらに、街全体が賑わっており、夜間も人通りが多いため、安全性の面でも安心感があります。
また、地下鉄だけでなく、バスの路線や本数も多いため、移動手段の選択肢が豊富なのも魅力の一つです。都心で利便性の高い暮らしを求める方にぴったりのエリアです。
<周辺環境>
スーパー:三徳 新宿本店まで350m(徒歩5分)
コンビニ:ローソン 東新宿明治通店まで200m(徒歩3分)
ドラッグストア:ウエルシア新宿大久保一丁目店まで220m(徒歩3分)
郵便局:新宿明治通郵便局まで350m(徒歩5分)
銀行:きらぼし銀行 東新宿駅前出張所店まで150m(徒歩2分)