お問い合わせ
新宿エリアの賃貸物件のことなら
お気軽にお問い合わせください。

| 賃料 | 13.2万円(管理費:1.2万円) |
|---|---|
| 敷金 | 1ヶ月 |
| 礼金 | 1ヶ月 |
| 間取り | 専有面積 |
|---|---|
| 1LDK | 31.1m² |









| 物件名 | アレーロ西早稲田(アレーロニシワセダ) |
|---|---|
| 賃料 | 13.2万円(管理費:1.2万円) |
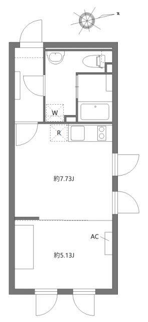
| 間取り | 1LDK |
| 専有面積 | 31.1m² |
| 設備 | オートロック , 光ファイバー対応 , 宅配ボックス , システムキッチン , 浴室換気乾燥機 , ウォシュレット , 独立洗面台 , 脱衣室 , バストイレ別 |
| 特徴 | デザイナーズ , 二人入居可 , 分譲賃貸 , インターネット無料 , 1DK以上 |
LINEからも
お問い合わせ
いただけます。

新宿エリアの賃貸物件のことなら
お気軽にお問い合わせください。

■独立洗面台■温水洗浄便座
東京都新宿区、活気あふれる多文化都市「新大久保」と、落ち着いた雰囲気の「西早稲田」のちょうど中間に位置する、4階建てのスタイリッシュなレジデンス。それが「アレーロ西早稲田」です。
2016年に建てられた鉄筋コンクリート(RC)構造のモダンなマンションで、全30戸の中規模物件だからこその、落ち着いた住環境とプライバシー性を兼ね備えています。
最寄り駅は、JR山手線「新大久保駅」から徒歩9分、東京メトロ副都心線「西早稲田駅」からは徒歩8分という利便性の高いロケーション。通勤・通学や休日のショッピング、お出かけにもストレスなくアクセスできます。
お部屋の間取りは、1Rから1LDKまで幅広く展開されており、一人暮らしの方はもちろん、カップルでの新生活にもぴったり。スマートな空間設計でありながら、ゆとりを感じさせる住空間が魅力です。
各住戸には、独立洗面台・システムキッチン・浴室乾燥機・温水洗浄便座など、毎日の暮らしを快適にする設備が充実。シンプルでありながら質の高い設備仕様は、ライフスタイルをより豊かにしてくれます。
また、建物内には住民専用のゴミ置場を設けており、忙しい朝でも時間に縛られずにゴミ出しができるのが嬉しいポイント。さらに、宅配ボックスも完備されており、不在時の荷物受け取りにも対応。ネットショッピングを頻繁に利用される方にも便利な仕様です。
徒歩圏にある「新大久保駅」周辺は、言わずと知れたコリアンタウン。韓国料理をはじめ、ベトナム、ネパール、インドなどアジア各国のグルメや食材が手に入り、まるで異国の街を旅しているような雰囲気が味わえます。日常の中で、気軽に異文化体験ができる点は、このエリアならではの魅力です。
駅前の大久保通り沿いには、スーパーや飲食店、カフェ、カラオケなどが軒を連ね、生活に必要なものはすべて徒歩圏内で揃います。街を歩けば、思わず寄り道したくなるような個性豊かな店が次々と現れ、日常に彩りを添えてくれるでしょう。
また、少し足を伸ばせば、新宿中央公園や戸山公園などの広々とした緑地も多く、自然と触れ合うひとときも楽しめます。都市の利便性と自然の癒し、どちらも手に入る贅沢な立地です。
<周辺環境>
スーパー:まいばすけっと 百人町文化通り店まで500m(徒歩7分)
コンビニ:ファミリーマート 新宿大久保二丁目店まで44m(徒歩1分)
ドラッグストア:薬 マツモトキヨシ 大久保一丁目店まで650m(徒歩9分)
郵便局:新宿大久保郵便局まで500m(徒歩7分)
銀行:ゆうちょ銀行 本店 大久保2丁目出張所店ま450m(徒歩6分)