お問い合わせ
新宿エリアの賃貸物件のことなら
お気軽にお問い合わせください。

| 物件種別 | 賃貸マンション |
|---|---|
| 物件名 | プライムメゾン市谷山伏町(プライムメゾンイチガヤヤマブシチョウ) |
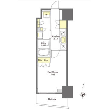
| 間取り | 1K~2LDK |
| 専有面積 | 25.29m²~60.36m² |
| 築年月 | 2015年10月 |
| 総戸数 | 118戸 |
| 構造・規模 | 鉄筋コンクリート造 13階建て |
| 駐車場 | あり 4,4000円/月 |
| バイク置き場 | あり |
| 駐輪場 | 登録料 |
| 設備 | オートロック , 光ファイバー対応 , 宅配ボックス , 追焚き機能付 , 浴室換気乾燥機 , ウォシュレット , 独立洗面台 , 脱衣室 , バストイレ別 , エレベーター , 敷地内ゴミ置き場 |
| 特徴 | デザイナーズ , 分譲賃貸 , 保証人不要 , レジデンス , 最寄り駅徒歩5分圏内 |
| 最終更新日 | 2026年03月15日 |
LINEからも
お問い合わせ
いただけます。
新宿エリアの賃貸物件のことなら
お気軽にお問い合わせください。

■デザイナーズ■ごみ出し24時間OK■ネット無料
東京都新宿区市谷山伏町に佇むプライムメゾン市谷山伏町は、都市型ライフスタイルに最適な鉄筋コンクリート造(RC)13階建ての高層マンションです。2015年10月に竣工し、総戸数118戸の大型レジデンス。最寄りの都営大江戸線「牛込柳町」駅へ徒歩3分、さらに「牛込神楽坂」駅へ徒歩9分という、利便性に優れたロケーションが魅力です。新宿や飯田橋、六本木方面へもスムーズにアクセスでき、通勤・通学に便利な環境が整っています。
本物件は1Kから2LDKまでの多彩な間取りを展開しており、シングル層からDINKS層まで幅広いライフスタイルに対応しています。モダンなデザインの室内には、独立洗面台、システムキッチン(使いやすいガスコンロ付き)、浴室乾燥機&追い焚き機能付きバス、温水洗浄便座など、暮らしを快適にする設備が充実。使い勝手の良さにこだわった設計で、日々の生活をストレスなく過ごせます。さらに、インターネット使用料が無料なのも嬉しいポイント。リモートワークや動画視聴、オンラインゲームを楽しむ方も、通信費を気にせず快適にインターネットを利用できます。敷地内には専用ゴミ置き場を完備し、24時間ゴミ出し可能。忙しい朝にゴミ出しのタイミングを気にする必要がなく、ライフスタイルに合わせて自由に処理できます。
設
「牛込柳町駅」周辺には、スーパーやコンビニ、ドラッグストアが点在し、日常の買い物に困ることはありません。さらに、静かで落ち着いた街並みが広がり、近隣には学校があるため、通学する学生の姿も見られる穏やかなエリアです。また、徒歩圏内には東京メトロ東西線「早稲田駅」や都営新宿線「曙橋駅」もあり、都営バスを利用すれば渋谷や池袋方面へもスムーズにアクセス可能。ビジネスエリアだけでなく、都内の人気スポットにも移動しやすい利便性の高い立地となっています。
<周辺環境>
スーパー:まいばすけっと牛込柳町駅東店まで240m(徒歩3分)
コンビニ:セブン-イレブン 市谷柳町店まで73m(徒歩1分)
ドラッグストア:くすりの福太郎市谷柳町店まで230m(徒歩4分)
郵便局:牛込郵便局まで300m(徒歩4分)
銀行:東京シティ信用金庫 牛込柳町支店まで200m(徒歩3分)